Harmonized community livings

Housing for mid income government officials

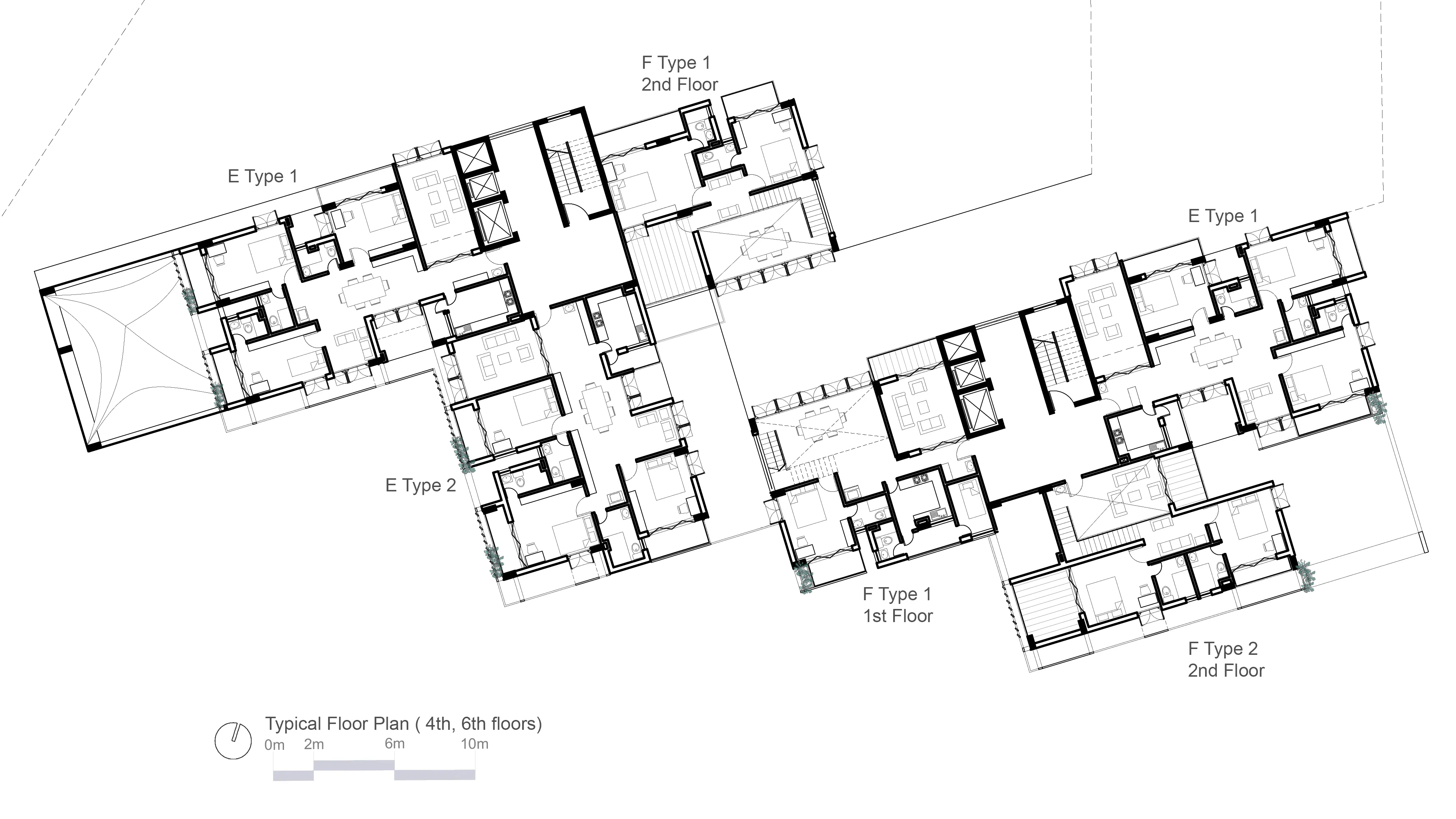
Analyzing the complexities of a site amidst the busiest parts of Dhaka, a housing for 500 government officials was proposed.

Random image

Ensuring communal spaces, and greenaeries within the concrete, where the pressure of high density housing always wins in negotiation, privacy is also provided by planning the spaces within living units accordingly. Such that no one’s bedroom is visible from another person’s house, or in other words, privacy is provided in places where required, and a balanced visual and physical connectivity is provided to brighten up spaces as well.

Random image
Mountains
Mountains
Mountains
Mountains
Mountains
Mountains
Mountains
Random image

Studio: 4th year - 2nd semester

Project duration: 10 weeks

Model media: Styrofoam, brown paper

Instructors:

  • - Huraera Jabin (ext.huraera.jabeen@bracu.ac.bd)
  • - Mohammad Faruk, Phd (mfaruk@bracu.ac.bd)

Presentation tools: Rhinoceros 6, Autocad, Lumion 10 and 12, Photoshop